
• Puikus susisiekimas su miesto rajonais ir pagrindiniais magistraliniais keliais. • Įmonės logotipas ant fasado, kuris matomas nuo judrios Vilnius–Utena magistralės. • Atskiras įėjimas iš lauko – automobilių stovėjimo aikštelės. • Patalpos turi prekybos salę, sandėliavimo zoną ir WC. • A++ energetinio naudingumo klasė, individuali apskaita. • Asfaltuota 150 vietų parkavimo aikštelė su elektromobilių įkrovimo stotelėmis.
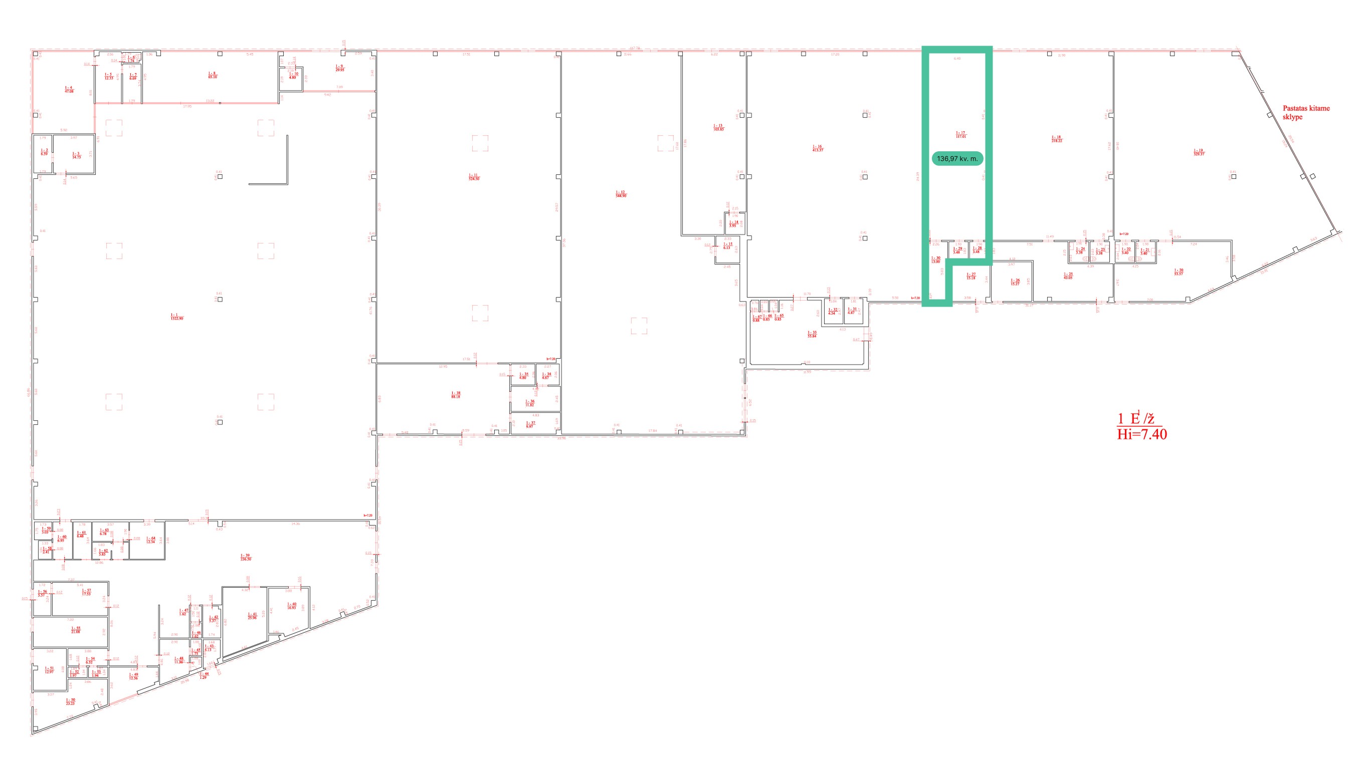
136,97 kv. m.
Mažmeninei
Kupiškio g. 52, Utena
2025 m.
Prekybos parkas PUŠYNAS
Patalpos įrengimas
• Patalpos perduodamos „Shell & Core“ su ŠVOK įrengimu. • Bendras patalpos perimetras yra atitvertas sandwich tipo plokštėmis arba gipso kartono pertvaromis, paruoštomis dažymui. • Sanitariniai mazgai yra iškloti plytelėmis ir pilnai įrengti. • Patalpose sumontuotas LED apšvietimas. • Šildymas užtikrinamas oras-oras šilumos siurbliais, įdiegta mechaninio vėdinimo sistema ir lubiniai oras-oras vėsinimo įrenginiai. • Įrengta priešgaisrinė signalizacija ir lauko įėjimo oro užuolaida.
Kviečiame plėstis didmeninės ir mažmeninės prekybos atstovus, veikiančius namų ūkio prekių ir buitinės technikos, sodo ir daržo technikos, laisvalaikio bei kitų susijusių prekių segmentuose, kurie prisideda prie kasdienės gyvenimo kokybės gerinimo, darnesnės buities kūrimo ir sąmoningo vartojimo.




